






We Provide complete solutions for Pre engineered buildings right from estimation to analysis, design, detailing, sheeting design and certifications. Our team has expertise in responding to daily challenges of PEB manufacturers whether it is urgent quote, design query or any other shop query . With expertise of more than 3000+ project and 250+ customers, We are India's most reputed and reliable consultants for PEB manufacturers.
Our design team is well equipped with all cutting edge software's as well as self developed software's with the help of which we provide most economical designs . We are well appreciated by most of the PEB manufacturers for our one hundred percent accuracy and rapid response.0.
PEB Design & Detailing Services
Estimation plays a critical role in any engineering project. Overestimation and underestimation have serious repercussion and we as consultants are acutely aware and understand the need for correct estimates. We at Rediscover strive to provide most accurate estimate for any type of PEB structure in record time. Our Estimates are very detailed with weight of each and every component starting from main frame, bracings, sheeting and fit outs to bolts specifically mentioned. Our Estimates go through a rigorous check as we understand that any error can result in serious consequences for our clients. Our clients knowing they possess most accurate estimate confidently bid and win projects in any geography.
DESIGN AND ANALYSIS


We at Rediscover are abreast with the most advanced software and have a robust system and process to deliver best optimized design and analysis services to our customers. We routinely keep our self-update with the current developments in Structural engineering. Our mastery over standard codes of practise like the BIS, AISC, BS and IBC code leads to production of sound engineering designs.
The systems and process implemented at Rediscover ensure all critical aspects of Analysis and Design go through rigorous checks and it adheres to our commitment to zero error policy. We even do manual calculations to ensure that the software output is correct within the tolerance limits. Delivering high quality, optimized and error free design is the motto of our design team.
Our design reports are exhaustive, standardized, of highest quality engineering practise and have been vetted by IITs, IISc, NIT and other premier Institutes in India. Our quality engineering design report helps clients to get faster approvals from regulating authorities.


DESIGN DRAWINGS
Our Design Reports are provided with Design drawings for better understanding and visualization. The design drawing sets are quite exhaustive covering Plan layout, anchor bolt layouts, frame elevations views, secondary framing plans and elevations and 3D views. Also based on the project design drawings for Mezzanine, crane, machine layouts etc are also provided. The design considerations are specifically mentioned so that suppliers and fabricator have better understanding of the project.


Detailed drawings play most crucial role in the success of any engineering project. Good detailed drawings reduce the chances of error by more than 80%. The rigorous standards and processes followed at Rediscover ensure error free detailed drawings delivered to our customers. We have best system in place to handle every aspect of detailed engineering like Modelling, Clash checking, producing shop drawings, erections drawings, BOMs, NC,CNC files and DXFs. Our clients have appreciated us for cent percent accuracy and quality deliverables
DETAIL ENGINEERING




Our company Rediscover is one of the developing and leading PEB Shop Drawing manufacturers, suppliers and dealers. We PEB shop drawing manufacturers perform this task with the latest ideas of drawing its architecture. This gives sufficient and convenient detailing of a given area so that the shop is accurately constructed in a safe and proper manner.
We PEB shop drawing supplier offer the shop drawing regarding the PEB structure that makes it featured with functional versatility and provides a clear span of visual appearance leading to perfection in formation.
SHOP DRAWING


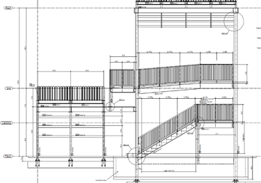
GENERAL ARRANGEMENT DRAWINGS
In our company we provides a large selection of fabricated structures for utilization in the construction industry. Since our founding in the year 2010, we have established an excellent reputation as a manufacturer and supplier of a wide variety of fabricated structures. Our finest quality product range comprises Prefabricated Industrial Roofing Shed, Steel Pre Engineering Prefabricated Shed, Industrial PEB Building Steel Structure, Construction PEB Prefabricated Shed, Poultry Farm Roofing Shed, Steel Prefabricated Shed, etc., all of which are provided at affordable prices. Our highly qualified team also ensures that the finalized products are properly tested and fulfil the top quality norms. We also work as a service provider and provide services like Pre Engineered Building
Project Showcase
Highlighting our successful TMT rebar projects and services.
ESTIMATION
FABRICATION SUPPORT
A general arrangement drawing (GA drawing) is a contract document, which records information needed to understand the general arrangement structural elements on a project. A GA drawing is created in BIM workflows from one or more model views, with associated schedules and on a project title sheet. This is the most common form of drawing used by consulting structural engineers to communicate a structure sufficiently to other legal teams, public authorities, along with the design, costing and construction teams.
General arrangement drawings show the model from the most suitable direction. For example, in plan drawings, you are looking from the top of a building or floor down towards the ground. In elevation drawings you are looking from one of the sides of the building, like along a grid line. General arrangement drawings often contain enlarged views of complex areas or details, and other additional information that helps in the approval process and during the installation phase.
Create general arrangement drawings when you need
Several views in one drawing, including the entire model or a part of it
Plan drawings (foundation, floor, deck layout, and anchor bolt plans)
Erection elevation drawings
Information from model views, including 3D views








Diverse group in Australia with interests in Real Estate Development & Sales, Hotels, Finance, Import-Export, IT Solutions, Management Consulting and Construction.
© 2025. All rights reserved.

